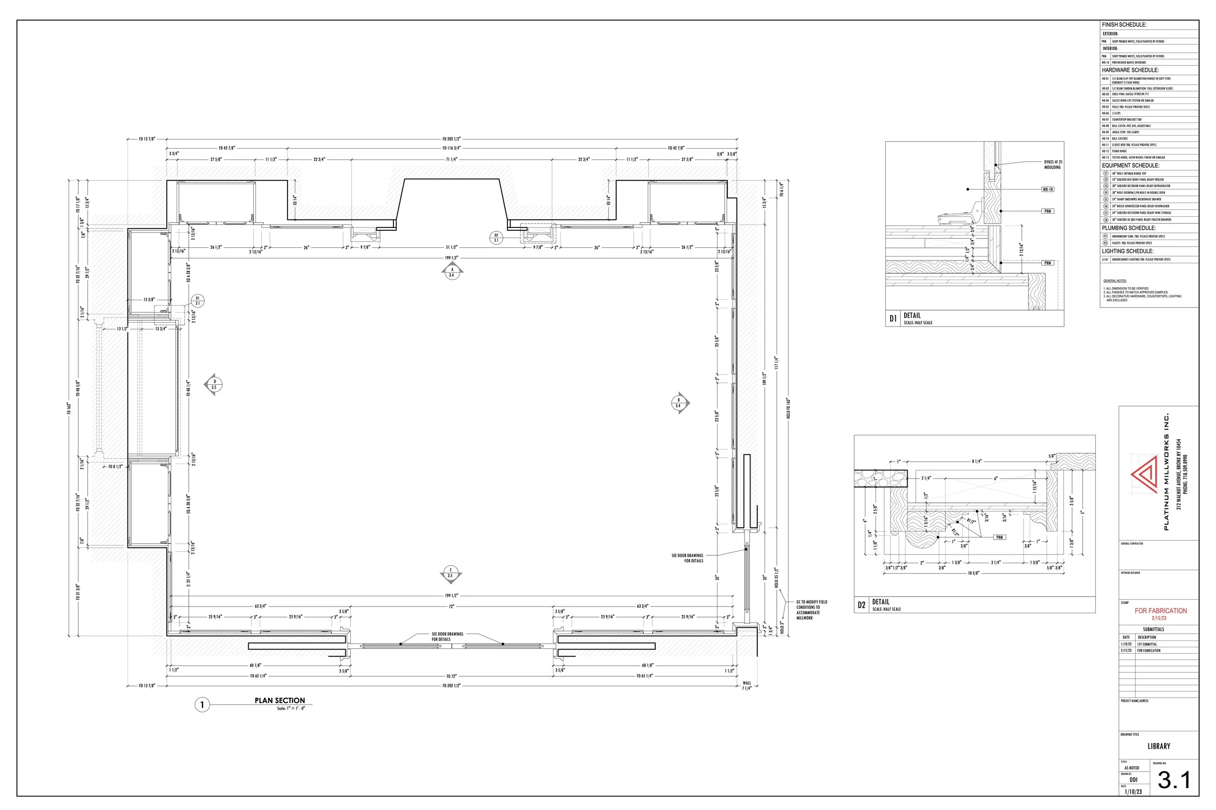
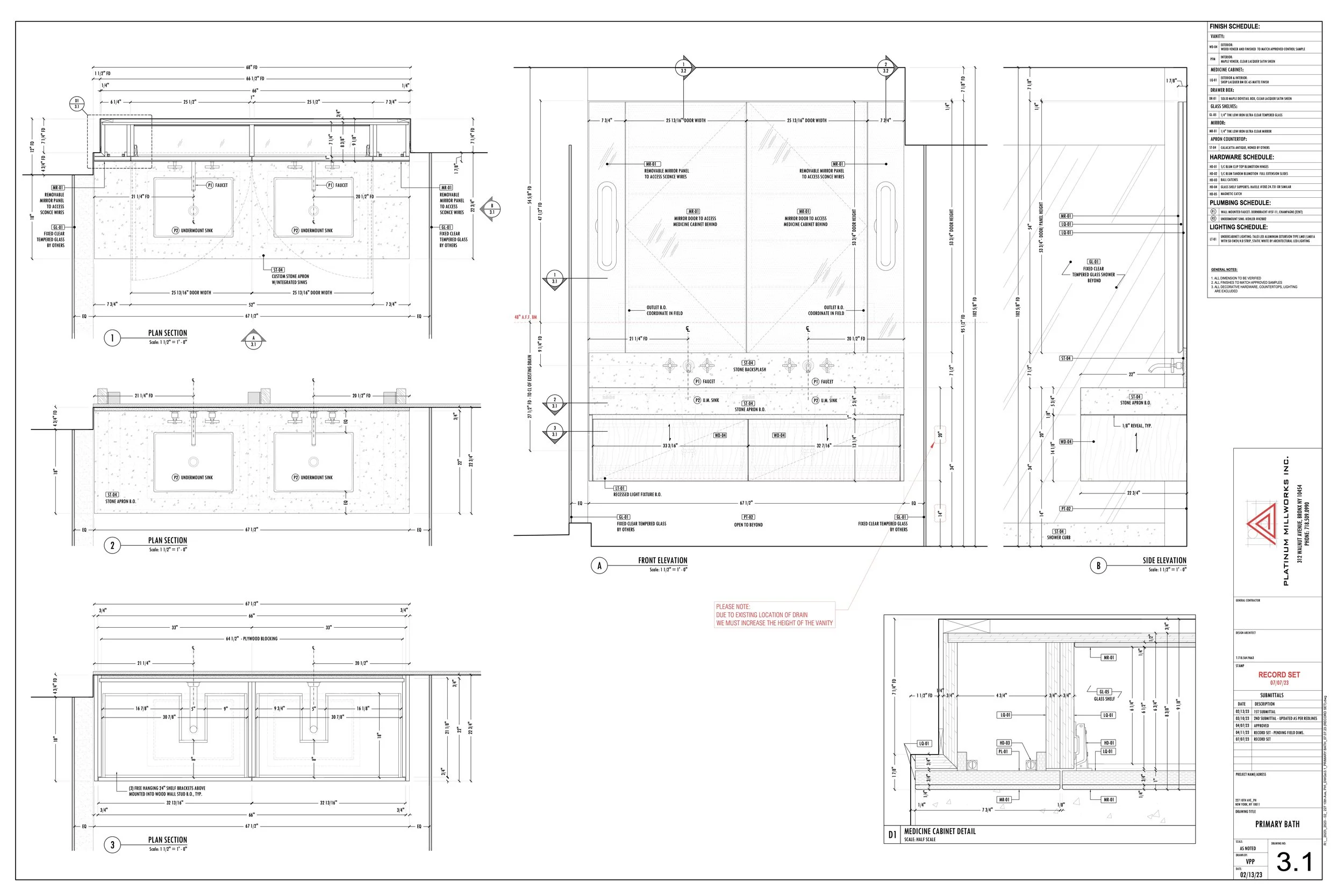
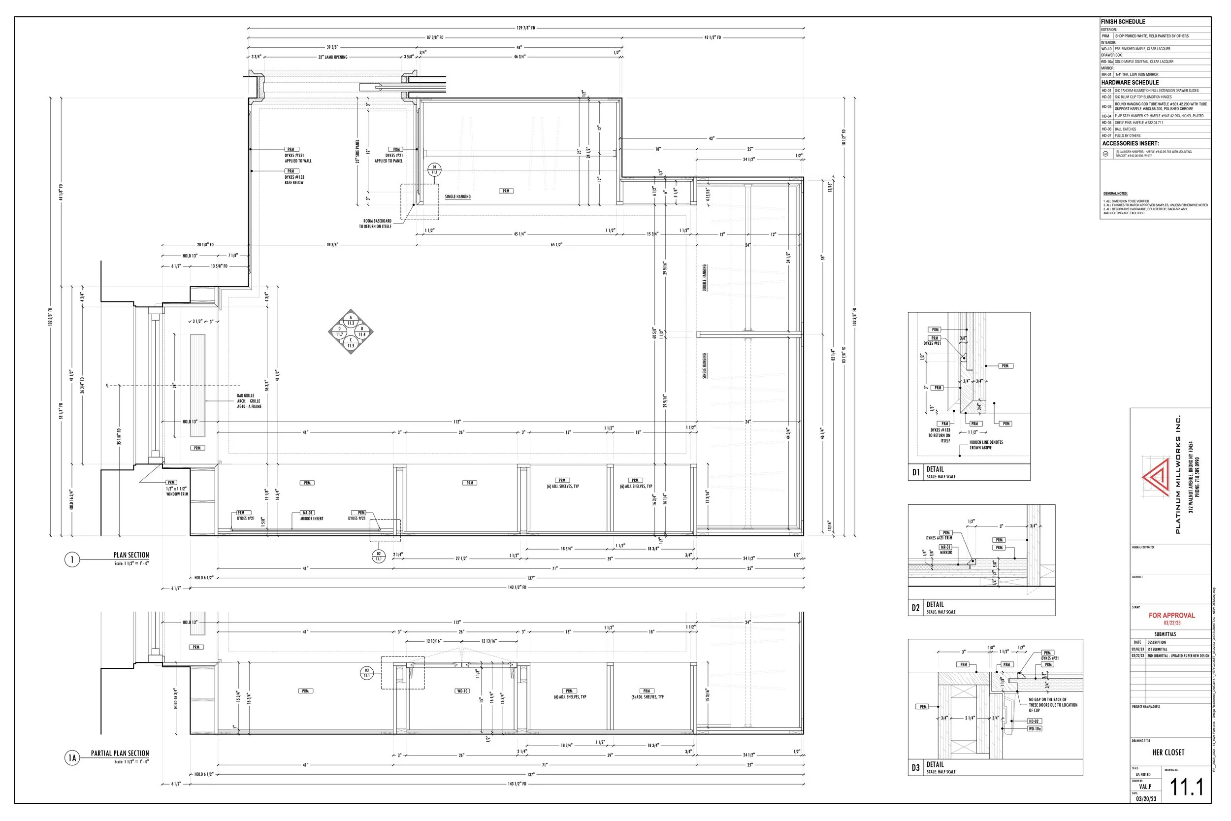
Our in-house team produces detailed shop drawings with extreme precision. View fullsize View fullsize View fullsize View fullsize View fullsize View fullsize View fullsize View fullsize View fullsize View fullsize